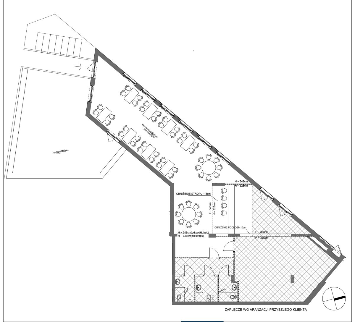
Mam przyjemność zaprezentować Państwu przestronny lokal usługowy idealny na restaurację. Lokal posiada duże witryny, wejście od głównej ulicy oraz jest w pełni przystosowany do działalności gastronomicznej lub innej usługowej. Powierzchnia 201,07 m2 oraz ogródek 70,1 m2.
0% Oferta bez prowizji od kupującego
✅ LOKALIZACJA
Mokotów, ul. Antoniewska, osiedle Rytm Mokotowa, etap 1B - rozwijająca się okolica, w trakcie budowy dużo nowych osiedli (po sąsiedzku Develia, Dom Development, kolejne etapy Robyg), docelowo gęsta zabudowa wielorodzinna gwarantująca ogromną ilość klientów. Jedyny lokal na osiedlu przystosowany pod gastronomie oraz jedyny z witryną i wejściem od ul. Antoniewskiej - brak konkurencji.
✅ LOKAL
- powierzchnia 201,07 m2 + ogródek 70,1 m2
- parter, duże witryny od strony dwóch ulic oraz ogródek przy chodniku idealny na wystawienie stolików
- dwustronna ekspozycja
- wydzielone oddzielne pomieszczenia na zaplecze, kuchnię itd (plan w galerii zdjęć)
- przystosowany do prowadzenia działalności gastronomicznej, posiada bardzo wydajne kanały wentylacyjne oraz miejsce na separator tłuszczu
- przydział mocy prądu 80 kW
- odpowiednia nośność stropu - 10kN
- wysokość 346cm
✅ STAN PRAWNY
Zakup na zasadzie cesji umowy deweloperskiej. Oddanie do użytku w 2026 roku.
✅ CENA
3 890 000 zł netto + 23% vat
Tel: 571-266-345
Jestem do Państwa dyspozycji 7 dni w tygodniu od 8:00 do 22:00
Michał Zdunek - wyłączny opiekun oferty
Ekspert ds. Nieruchomości
Jeżeli zakup wiąże się ze sprzedażą innej nieruchomości, zapraszam do kontaktu. Z chęcią pomogę Ci w tym procesie!
Przedstawiona wyżej oferta nie jest ofertą handlową w rozumieniu przepisów prawa, lecz ma charakter informacyjny. Dane dotyczące ofert uzyskano na podstawie oświadczeń Sprzedających.
Lokal z ogródkiem | Gastronomia| Jedyny na osiedlu
lokalizacja: Warszawa
3 890 000,00 PLN
19 346,50 PLN
Dane szczegółowe
- Typ transakcji: sprzedaż
- Typ nieruchomości: Komercyjny
- Lokalizacja: Warszawa Mokotów
- Powierzchnia:201,07 m2
- Rok budowy: 2026
- Piętro: 0 z 1
- Numer oferty: 322173
- Cena: 3 890 000,00 PLN
- Cena za m2: 19 346,50 PLN
Opis nieruchomości
Kontakt do opiekuna:
Peterson Nieruchomości